不動産のことならバンデにお任せください

03-5830-6771

LINEでも御連絡可能です

営業時間:10:00~19:00 (水曜定休)

時間外対応可能です。

サクッと査定依頼 メールでのお問合せ

トップページ › 台東区 › フローラハイツマツモト 403号室の物件詳細

  • お気に入り物件
  • 最近見た物件

フローラハイツマツモト 403号室の物件詳細

フローラハイツマツモト

情報更新日:2025年11月10日

田原小学校近く♪浅草にありながら落ち着いた場所にあります
銀座線・都営浅草線・つくばEX利用可能につき通勤通学便利です♪
2LDKが14万円代!!お早めにお問合せください!

ここがポイント
  • 雷門アドレス♪
    住環境良好♪
    駅近♪
最寄り駅 徒歩
住所
賃料
管理・共益費
敷金
礼金
仲介手数料
面積
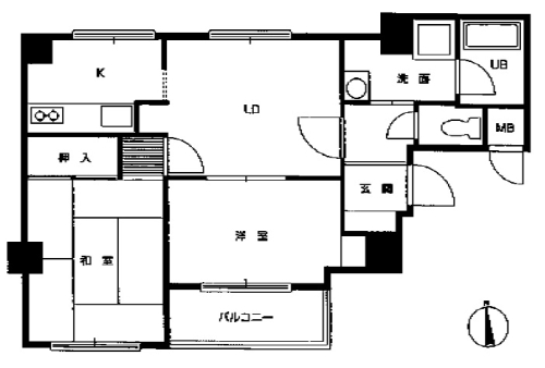
間取り
種別
築年月
向き
東京メトロ銀座線 『田原町駅』 徒歩2分
東京都台東区雷門1丁目
13.5万円
0.5万円
敷:2ヶ月
礼:1ヶ月
仲:-
48.37㎡
2LDK
マンション
1990年04月
お気に入りにする 印刷用ページ
03-5830-6771
お問合せ 空室確認・下見依頼など

【営業時間】10:00~19:00
【定休日】水曜日

前へ 次へ

拡大する

物件概要

物件名 フローラハイツマツモト 403号室
所在地 東京都台東区雷門1丁目 周辺地図
交通 東京メトロ銀座線 『田原町駅』 徒歩2分 /東京メトロ銀座線 『浅草駅』 徒歩7分 /都営浅草線 『浅草駅』 徒歩7分 /つくばエキスプレス線「浅草駅」徒歩3分
賃料
(管理費・共益費)
13.5万円(0.5万円) 敷金/礼金
仲介手数料
敷:2ヶ月/ 礼:1ヶ月/ 仲:-
その他料金 駆けつけサービス2年間16500円
間取り 2LDK 間取り詳細 専有面積 48.37㎡
種別/構造 マンション/SRC(鉄骨鉄筋コンクリート) 階部分/階建て 地上4階部分/地上8階建て 方位
築年月 1990年04月 入居可能日 相談 保険 損保有り・指定有り 2万円/2年(全日ラビー住まいの保険)
駐車場
バイク置き場 駐輪場 有り
鍵交換代 2.5万円 保証委託料 7万円
設備 バス・トイレ別|室内洗濯機置場|洗面所独立|トイレ数:1|エアコン付き|押入|シューズボックス|ガスコンロ対応|ガスコンロ三口設置済み|システムキッチン|グリル|フローリング|バルコニー付き|防犯カメラ|エレベーター|エレベーター数:1基|敷地内ごみ置き場|駐輪場有り|公営水道|都市ガス|本下水道|
条件 単身者:可|2人入居:可|子供:可|ルームシェア:不可|ペット:不可|楽器:不可|保証会社利用:可|事務所利用:不可|3駅以上利用可|3沿線以上利用可|
備考
更新日 2025年11月10日 情報有効期限 2025年11月24日
お問合せ番号 取引形態 一般媒介 業者付け

※各種情報と現状に差異がある場合は、現状優先となります。

お問合せ 空室確認・下見依頼など

物件周辺地図