不動産のことならバンデにお任せください

03-5830-6771

LINEでも御連絡可能です

営業時間:10:00~19:00 (水曜定休)

時間外対応可能です。

サクッと査定依頼 メールでのお問合せ

トップページ › 文京区 › 向丘1丁目古民家の物件詳細

  • お気に入り物件
  • 最近見た物件

向丘1丁目古民家の物件詳細

向丘1丁目古民家

情報更新日:2026年02月05日

駅・バス停・学校至近!
2025年フルリノベーション済!昭和レトロな美室♪
コンパクトでありながら3部屋確保できているので最大3名様のルームシェア相談いただけます。
エアコン3台♪インターネット基本料無料♪
おすすめ物件ですのでお早めにお問合せください♪

ここがポイント
  • リノベーション済♪
    ルームシェア相談♪
    事務所相談可♪
最寄り駅 徒歩
住所
賃料
管理・共益費
敷金
礼金
仲介手数料
面積
間取り
種別
築年月
向き
東京メトロ南北線 『東大前駅』 徒歩2分
東京都文京区向丘1丁目
17.55万円
1.5万円
敷:1ヶ月
礼:1ヶ月
仲:1ヶ月
43.05㎡
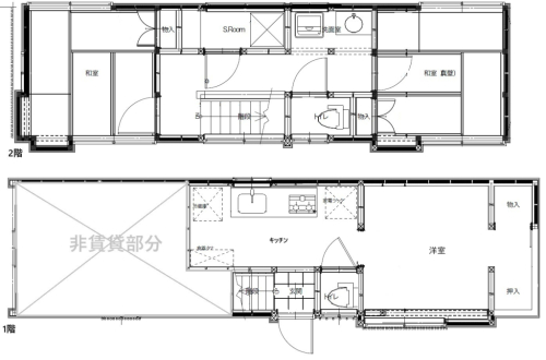
3K
一戸建て
1976年09月
-
お気に入りにする 印刷用ページ
03-5830-6771
お問合せ 空室確認・下見依頼など

【営業時間】10:00~19:00
【定休日】水曜日

前へ 次へ

拡大する

物件概要

物件名 向丘1丁目古民家
所在地 東京都文京区向丘1丁目 周辺地図
交通 東京メトロ南北線 『東大前駅』 徒歩2分 /東京メトロ南北線 『本駒込駅』 徒歩10分 /都営三田線 『白山駅』 徒歩12分
賃料
(管理費・共益費)
17.55万円(1.5万円) 敷金/礼金
仲介手数料
敷:1ヶ月/ 礼:1ヶ月/ 仲:1ヶ月
その他料金 駆けつけサービス15000円(税別)2年
間取り 3K 間取り詳細 専有面積 43.05㎡
種別/構造 一戸建て/木造 階部分/階建て 地上1・2階部分/地上2階建て 方位
築年月 1976年09月 入居可能日 保険 損保有り・指定有り 2万円/2年(全日ラビー少額短期保険)
駐車場
バイク置き場 駐輪場
鍵交換代 保証委託料
設備 バス・トイレ別|室内洗濯機置場|洗面所独立|温水洗浄便座|トイレ数:2|エアコン付き|エアコン数:3基|インターネット接続タイプ:あり|インターネット接続料金:無料|IH調理機|システムキッチン|グリル|TVモニタ付きインタホン|公営水道|
条件 法人:可|学生:可|単身者:可|2人入居:可|ペット:不可|楽器:不可|事務所利用:相談可|最上階|角部屋|2面採光|2駅利用可|リノベーション|
備考
更新日 2026年02月05日 情報有効期限 2026年02月19日
お問合せ番号 取引形態 専任媒介 業者付け

※各種情報と現状に差異がある場合は、現状優先となります。

お問合せ 空室確認・下見依頼など

物件周辺地図