情報更新日:2026年02月05日
| 最寄り駅 徒歩 住所 |
賃料 管理・共益費 |
敷金 礼金 |
面積 間取り |
種別 築年月 向き |
|---|---|---|---|---|
| 東京メトロ南北線 『東大前駅』 徒歩2分 東京都文京区向丘1丁目 |
17.55万円 1.5万円 |
敷:1ヶ月 礼:1ヶ月 仲:1ヶ月 |
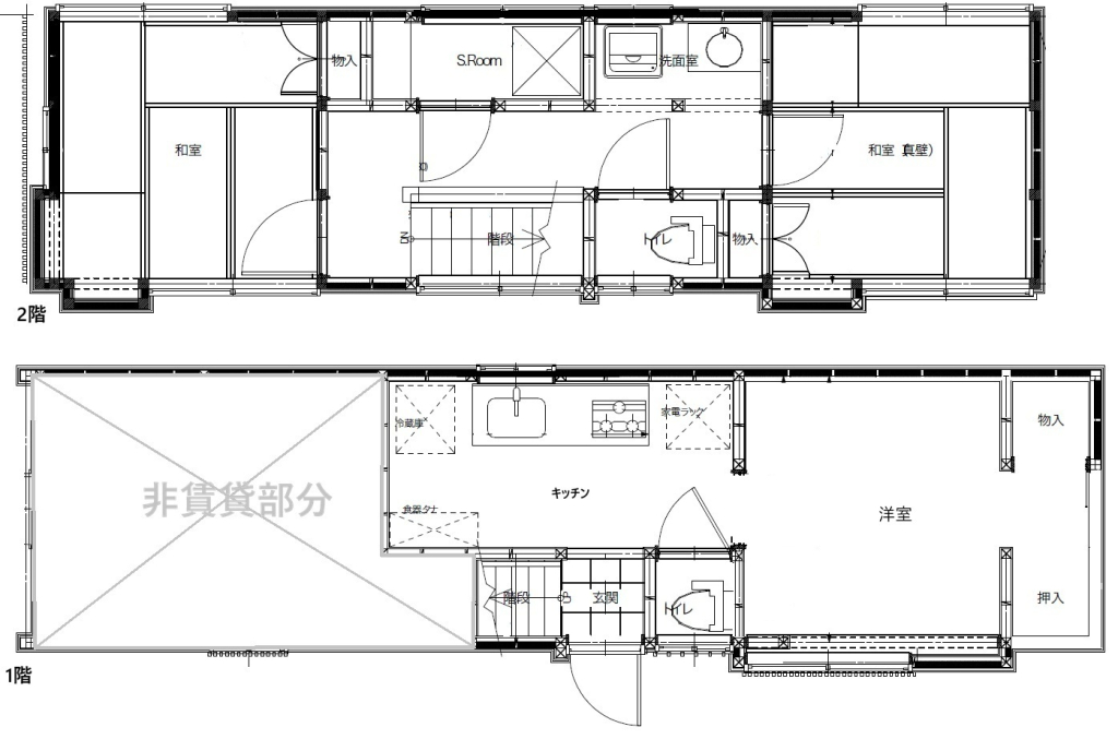
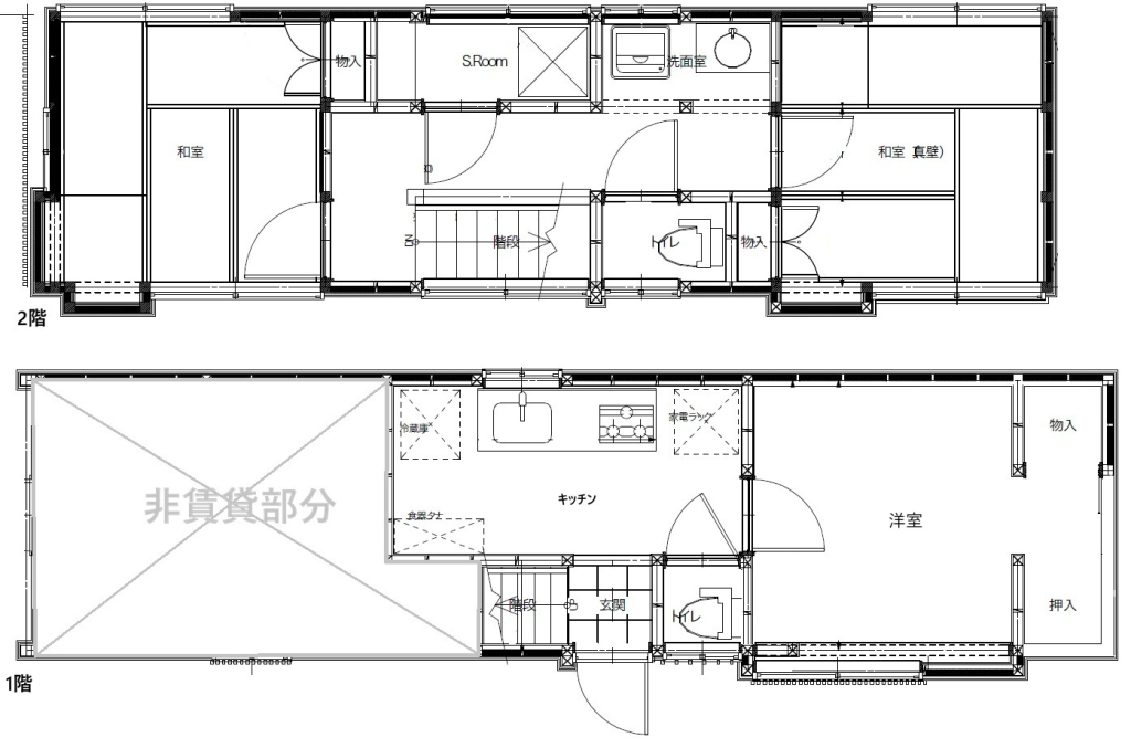
43.05㎡ 3K |
一戸建て 1976年09月 - |
| 物件名 | 向丘1丁目古民家 | ||||
|---|---|---|---|---|---|
| 所在地 | 東京都文京区向丘1丁目 | ||||
| 交通 | 東京メトロ南北線 『東大前駅』 徒歩2分 /東京メトロ南北線 『本駒込駅』 徒歩10分 /都営三田線 『白山駅』 徒歩12分 | ||||
| 賃料 (管理費・共益費) |
17.55万円(1.5万円) | 敷金/礼金 仲介手数料 |
敷:1ヶ月/ 礼:1ヶ月/ 仲:1ヶ月 | ||
| その他料金 | 駆けつけサービス15000円(税別)2年 | ||||
| 間取り | 3K | 間取り詳細 | 専有面積 | 43.05㎡ | |
| 種別/構造 | 一戸建て/木造 | 階部分/階建て | 地上1・2階部分/地上2階建て | 方位 | |
| 築年月 | 1976年09月 | 入居可能日 | 即 | 保険 | 損保有り・指定有り 2万円/2年(全日ラビー少額短期保険) |
| 駐車場 | 無 | ||||
| バイク置き場 | 駐輪場 | ||||
| 鍵交換代 | 保証委託料 | ||||
| 設備 | バス・トイレ別|室内洗濯機置場|洗面所独立|温水洗浄便座|トイレ数:2|エアコン付き|エアコン数:3基|インターネット接続タイプ:あり|インターネット接続料金:無料|IH調理機|システムキッチン|グリル|TVモニタ付きインタホン|公営水道| | ||||
| 条件 | 法人:可|学生:可|単身者:可|2人入居:可|ペット:不可|楽器:不可|事務所利用:相談可|最上階|角部屋|2面採光|2駅利用可|リノベーション| | ||||
| 備考 | |||||
| 更新日 | 2026年02月05日 | 情報有効期限 | 2026年02月19日 | ||
| お問合せ番号 | 取引形態 | 専任媒介 | 業者付け | ||
※各種情報と現状に差異がある場合は、現状優先となります。
東京都台東区雷門1-6-6 布施不動産ビル3階
営業時間:10:00~19:00 定休日:水曜日
東京都知事(1)101172号